Pneumatikpläne zeichnen
So 03 Januar 2021Ich liebe es, wenn ein Plan funktioniert. — Hannibal Smith
Die Schablonen Methode
In der Lehre habe ich Pneumatikpläne mit Hilfe einer Schablone gezeichnet. Das war schon deutlich schneller als von Hand, aber auf Dauer unbefriedigend.
Das CAD-Programm
Anfang der 2000er bin ich von Bleistift und Lineal auf CAD umgestiegen. Symbole konnten einmal definiert und dann immer wieder verwendet werden. Obwohl das bereits eine große Erleichterung war, blieb es eine Ansammlung von Strichen.
Plan-Zeichenprogramme
Natürlich gibt es für das große Elektro Plan Zeichenprogramm auch ein Modul für Pneumatikpläne. Das Programm ist jedoch recht teuer und daher für Privatnutzer und KMU nicht die erste Wahl.
KiCAD
Das Programm KiCAD dient zum Zeichnen von Schaltplänen aus denen dann Platinen erzeugt werden können. Der Schaltplaneditor bietet eine Funktion, die das Programm attraktiv macht: Wenn ein Bauteil verschoben wird, bleiben die Verbindungen erhalten.
Leider gibt es keine Bibliotheken für Pneumatikelemente. Diese lassen sich zwar problemlos Erstellen, der Aufwand dafür ist jedoch groß.
QElectroTech
Das Programm QElectoTech dient zu Zeichnen von Schalt- und Installationsplänen. Es bietet aber auch Symbole für Heizungsanlagen oder Pneumatikpläne.
Aktuell ist die Version 0.90.
Auf der GitHub Seite kann man die Entwicklung verfolgen.
Zu diesem Programm gibt es Tutorials auf YouTube, die den Einstieg erleichtern.
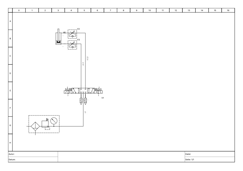
Hier ein Beispielplan:

Und hier das PDF als Download.
Axel Kielhorn